
SCHWARZE SCHEUNE
Innenarchitektur Obergeschoss
Neubau eines Wohnhauses
Lindau Bodensee
Grundrissoptimierung, Entwurf und Detaillierung
fester Einbauten wie Fenster, Treppe, Türen,
Material - und Farbauswahl,
Möbelentwicklung,
Badezimmer- und Küchenplanung,
Möblierungs- und Beleuchtungsberatung,
Umsetzung
Fotos: Tina Willim
& Sebastian Ernst
Archtitektur: Sebastian Ernst LV 1-4
Architekturpreis 2024 Bezirk Schwaben
Nominierung DAM Preis 2024











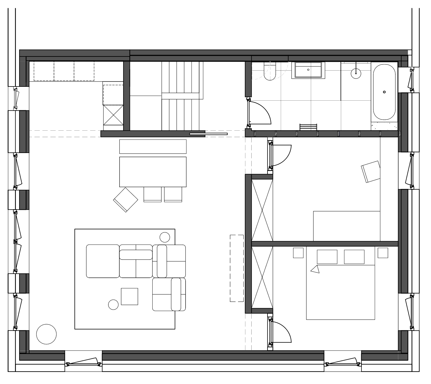
SCHWARZE SCHEUNE
Innenarchitektur Obergeschoss
Neubau eines Wohnhauses
Lindau Bodensee
Grundrissoptimierung, Entwurf und Detaillierung
fester Einbauten wie Fenster, Treppe, Türen,
Material - und Farbauswahl,
Möbelentwicklung,
Badezimmer- und Küchenplanung,
Möblierungs- und Beleuchtungsberatung,
Umsetzung
Fotos: Tina Willim
& Sebastian Ernst
Archtitektur: Sebastian Ernst LV 1-4
Architekturpreis 2024 Bezirk Schwaben
Nominierung DAM Preis 2024