
SCHWARZE SCHEUNE
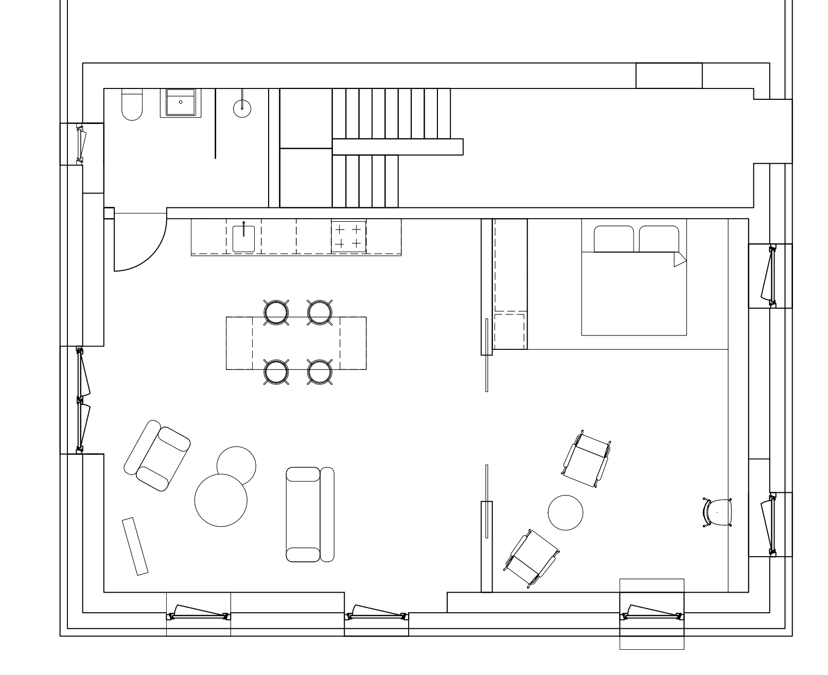
Innenarchitektur Erdgeschoss
Neubau eines Wohnhauses
Lindau Bodensee
Konzeption Raumgestaltung,
Material - und Farbauswahl,
Möbelentwicklung,
Entwurfs- und Ausführungsplanung,
Detaillierung fester Einbauten
wie Fenster und Türen,
Badezimmer- und Küchenplanung,
Möblierungs- und Beleuchtungsberatung,
Konzeption Terrasse,
Umsetzung
Fotos: Tina Willim
& Sebastian Ernst
Archtitektur: Sebastian Ernst LV 1-4
Architekturpreis 2024 Bezirk Schwaben













SCHWARZE SCHEUNE
Innenarchitektur Erdgeschoss
Neubau eines Wohnhauses
Lindau Bodensee
Konzeption Raumgestaltung,
Material - und Farbauswahl,
Möbelentwicklung,
Entwurfs- und Ausführungsplanung,
Detaillierung fester Einbauten
wie Fenster und Türen,
Badezimmer- und Küchenplanung,
Möblierungs- und Beleuchtungsberatung,
Konzeption Terrasse,
Umsetzung
Fotos: Tina Willim
& Sebastian Ernst
Archtitektur: Sebastian Ernst LV 1-4
Architekturpreis 2024 Bezirk Schwaben